Nhôm Ponzio – Vẻ đẹp độc bản mang đậm tinh thần Ý, phân phối chính thức bởi Baudoor Việt Nam
Nếu cửa nhôm Đức được biết đến với sự chính xác, cứng rắn và tính công nghiệp cao, thì nhôm Ponzio của Ý lại mang trong mình một linh hồn khác biệt – sự mềm mại, tinh tế và đậm chất nghệ thuật. Đó không chỉ là vật liệu kiến trúc, mà là biểu tượng của văn hóa, thẩm mỹ và tinh thần sáng tạo đặc trưng của người Ý – nơi mà cái đẹp, sự tỉ mỉ và tính cá nhân hóa được tôn vinh như một giá trị truyền đời.
1. Ponzio – Di sản hơn 80 năm mang tinh thần Ý
Thành lập từ năm 1941 tại Torino – cái nôi của ngành công nghiệp và nghệ thuật Ý, Ponzio Aluminium Systems là thương hiệu hiếm hoi vẫn giữ trọn vẹn bản sắc gia tộc qua hơn 80 năm phát triển. Khác với nhiều tập đoàn Đức chọn con đường cổ phần hóa, lên sàn chứng khoán để mở rộng quy mô, Ponzio vẫn giữ nguyên cấu trúc doanh nghiệp gia đình – điều hiếm thấy trong thế giới công nghiệp hiện đại.
Chính triết lý “Family Heritage over Corporation” này giúp Ponzio duy trì tinh thần độc bản – mỗi sản phẩm không chỉ là kết quả của kỹ thuật, mà còn là kết tinh của cảm xúc, truyền thống và gu thẩm mỹ Ý tinh tế. Đây cũng là lý do Ponzio trở thành thương hiệu nhôm Ý duy nhất được các kiến trúc sư châu Âu xem là “luxury brand in aluminium architecture”.

2. Tính Ý trong nhôm Ponzio – Sự hòa quyện giữa nghệ thuật và kỹ thuật
Nếu kỹ thuật Đức hướng đến sự tuyệt đối về cơ khí và hiệu suất, thì người Ý tin rằng vẻ đẹp là yếu tố không thể tách rời của công năng. Tư duy này thể hiện rõ trong từng chi tiết của nhôm Ponzio – nơi các kỹ sư và nhà thiết kế cùng làm việc để tạo ra sản phẩm vừa chính xác về kỹ thuật, vừa hoàn mỹ về thẩm mỹ.


Từ bề mặt nhôm được anod hóa mịn mờ như lụa kim loại, đến từng bo góc, đường cắt profile mềm mại – mọi chi tiết của Ponzio đều phản ánh tinh thần “Made in Italy”: nghệ thuật, cảm xúc và tính cá nhân hóa. Các hệ cửa Ponzio không chỉ vững chắc như một cấu trúc kỹ thuật, mà còn mang ngôn ngữ của kiến trúc Ý – nơi ánh sáng, tỉ lệ và cảm xúc được cân bằng hoàn hảo.
3. Gu thẩm mỹ Ý – Tạo nên vẻ đẹp không trùng lặp
Người Ý có một triết lý đơn giản nhưng sâu sắc: “Design is emotion made visible” – Thiết kế là cảm xúc được nhìn thấy. Ponzio thấm nhuần tinh thần này trong mọi dòng sản phẩm của mình. Mỗi hệ nhôm, mỗi chi tiết đều được thiết kế với mong muốn mang lại trải nghiệm cá nhân hóa, khác biệt cho từng công trình.
Trong khi nhôm Đức tuân thủ các tiêu chuẩn công nghiệp thống nhất – nơi mọi sản phẩm giống nhau như khuôn mẫu, thì nhôm Ý Ponzio lại hướng đến tính độc bản (bespoke). Ponzio không sản xuất đại trà, mà cung cấp giải pháp tùy biến theo nhu cầu thiết kế và phong cách kiến trúc: từ biệt thự cổ điển, nhà phố hiện đại đến khách sạn và công trình nghệ thuật. Chính sự “phi công nghiệp hóa” này đã tạo nên vẻ đẹp sống động và có hồn mà chỉ người Ý mới làm được.

4. Triết lý gia tộc – Giữ gìn bản sắc, không đánh mất linh hồn
Trong khi nhiều thương hiệu Đức chuyển hướng thành tập đoàn đa quốc gia và mất đi bản sắc riêng, Ponzio vẫn kiên định với con đường của mình: không cổ phần hóa, không niêm yết, không đánh đổi linh hồn nghệ thuật lấy lợi nhuận. Mỗi thế hệ Ponzio đều kế thừa và phát triển dựa trên tinh thần “Artigianalità Industriale” – tinh thần thủ công trong sản xuất công nghiệp.

Chính sự trung thành với giá trị cốt lõi này giúp nhôm Ponzio mang đậm tính nhân văn và cảm xúc. Mỗi hệ nhôm được sinh ra không chỉ để phục vụ chức năng kỹ thuật, mà để tạo nên không gian sống có cảm xúc, có bản sắc và có câu chuyện riêng.
5. Kỹ thuật châu Âu – Nền tảng vững chắc của cái đẹp Ý
Ponzio vẫn tuân thủ nghiêm ngặt các tiêu chuẩn kỹ thuật châu Âu: hợp kim EN AW-6060 T66, xử lý bề mặt Anodization hoặc Powder Coating Qualicoat Seaside, kiểm định khí động học tại **IFT Rosenheim (Đức). Nhưng Ponzio đã biến kỹ thuật thành nghệ thuật, khi mỗi công đoạn đều được thực hiện với triết lý “Precision with Passion” – sự chính xác đi cùng niềm đam mê.
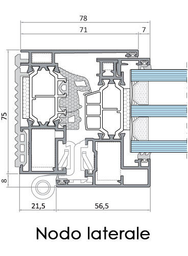
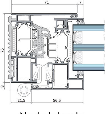
Các hệ nhôm Ponzio như PE78N, SL1600TT, MC600 không chỉ đạt hiệu suất cách âm, cách nhiệt hàng đầu mà còn mang ngôn ngữ thẩm mỹ riêng biệt – sang trọng, tinh tế và đầy cảm xúc. Ponzio không chỉ làm cửa, Ponzio làm tuyên ngôn kiến trúc.

.
6. Baudoor – Đại lý chính thức của Ponzio tại Việt Nam
Tại Việt Nam, Công ty Cổ phần Baudoor Việt Nam là đại lý phân phối chính thức của Ponzio, mang đến trọn bộ hệ nhôm cao cấp 100% châu Âu cho thị trường trong nước. Với định hướng “Đưa tinh thần Ý đến từng không gian sống Việt”, Baudoor không chỉ là nhà nhập khẩu, mà còn là đối tác chiến lược chuyển giao kỹ thuật và tiêu chuẩn lắp đặt của Ponzio.
Tất cả sản phẩm Ponzio do Baudoor cung cấp đều đi kèm chứng nhận CO-CQ châu Âu, tem bảo hành chính hãng, và được tư vấn – lắp đặt bởi đội ngũ kỹ thuật được đào tạo trực tiếp theo tiêu chuẩn Ponzio Italy. Đây là cam kết để khách hàng Việt Nam sở hữu sản phẩm nhôm Ý độc bản, đẳng cấp và khác biệt hoàn toàn với các hệ nhôm công nghiệp phổ thông.
7. Kết luận – Ponzio: Nơi cái đẹp Ý chạm đến tâm hồn
Nếu nhôm Đức là biểu tượng của lý trí và sự hoàn hảo kỹ thuật, thì nhôm Ý Ponzio là biểu tượng của cảm xúc, gu thẩm mỹ và sự tinh tế vượt thời gian. Giữa thế giới công nghiệp hóa đồng loạt, Ponzio chọn con đường riêng – gìn giữ truyền thống gia tộc, đề cao tính cá nhân hóa và tạo nên những sản phẩm độc bản, mang linh hồn Ý.
Với sự đồng hành của Baudoor Việt Nam – đại lý chính thức của Ponzio, tinh hoa của kiến trúc Ý nay đã hiện diện trong từng công trình Việt: sang trọng, tinh tế và đầy cảm xúc – nơi kỹ thuật châu Âu hòa cùng nghệ thuật và tâm hồn Ý.
Liên hệ Ponzio Việt Nam: 0947.426.889








Đánh giá
Chưa có đánh giá nào.